Schöne Wohnung in List auf Sylt zu verkaufen
Schöne Wohnung im Obergeschoss im Reihenendhaus eines 8-Parteien-Hauses auf einem 959m2 großen Grundstück in Dünennähe in List.
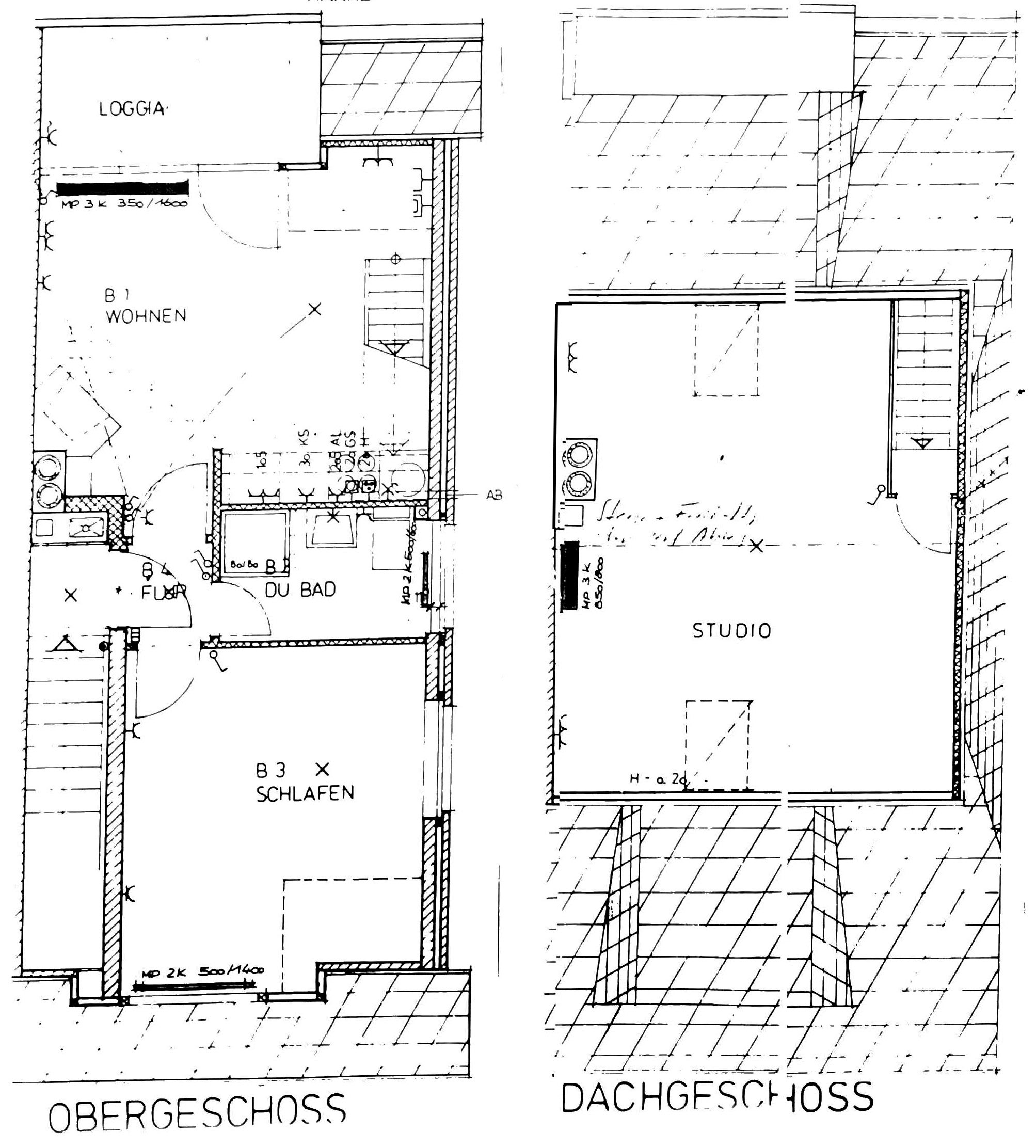
🏠 Zum Verkauf steht die Wohnung im Obergeschoss mit Loggia und ausgebautem Dachgeschoss im Reihenendhaus Richtung Süd-West (zur ruhigen Straße hin gelegen). Weiter unten finden Sie Bilder und auch den Grundriss der Wohnung.
Bei Interesse steht auch die darunter liegende Erdgeschoßwohnung zum Verkauf.
Adresse: Mövenbergstraße 33, 25992 List Inklusive: PKW-Stellplatz Energieausweis: liegt vor
🏠 Gebäudeinformationen
- Baujahr: 1983
- Gebäudetyp: Reihenhaus mit 2 Mittel- und 2 Endhausteilen (bestehend aus je einer Wohnung im Erdgeschoss mit Terrasse und Kellergeschoss und einer Wohnung im Obergeschoss mit Loggia und Dachgeschoss. Jede Wohnung verfügt über einen eigenen Eingang.
- Wohneinheiten: 8
- Gebäudenutzfläche: 884,4 m²
- Wohnfläche gesamt: 737,0 m²
- Energieträger: Erdgas
- Heizung: Gas-Heizwerttherme, Baujahr 2016
- Endenergieverbrauch: 69,1 kWh/m²*a
- Primärenergieverbrauch: 76,1 kWh/m²*a
📐 Wohn - Nutzfläche der Wohnung (nach Sylter Maß)
Obergeschoss: 45,31 m2
Dachgeschoss: 26,48 m2
Gesamt: 71,79 m2
Hinweis zum Sylter Maß, das bei den meisten Immobilienanzeigen auf Sylt angegeben wird: Die Flächen wurden entlang der Fußleisten gemessen und nicht durch Dachschrägen reduziert (keine DIN-Berechnung). Dieses Maß gibt alle im Objekt enthaltenen Flächen wieder, gemessen an den Fußleisten (Dachgeschoss u. Spitzboden). Der Balkon wurde mit 25% angerechnet.
📐 Wohn - Nutzfläche der Wohnung (nach genormter Berechnung unter Berücksichtigung der Dachschrägen, der Balkon wurde mit 25% angerechnet)
Obergeschoss: 39,47 m2
Dachgeschoss: 14,22 m2
Gesamt: 53,69 m2
🛏 Nutzung & Ausstattung
- Vermietung: Seit 2005 über lokale Apartmentvermittlung (das Gebäude wurde ursprünglich als Ferienimmobilie erbaut)
- Maximale Belegung: 5 Personen
- Aktuelle Raumaufteilung:
- Obergeschoss: Wohn-/Essbereich mit Küchenzeile und Balkon, Bad, Schlafzimmer mit Doppelbett
- Dachgeschoss: Schlafzimmer mit Doppelbett und Einzelbett
Besonderheiten:
- Durchdachte Raumaufteilung
- Sonnige und hochwertige Einrichtung
- Komplett ausgestattet
- Hervorragende Lage in List
🌿 Lage & Umgebung
Die Mövenbergstraße liegt im Norden der Insel Sylt, nahe den Dünen von List.
- Weststrand: ca. 4 km nördlich
- Hafen & Erlebniszentrum Naturgewalten: fußläufig erreichbar
- Schiffsausflüge: ab List zu Amrum, Föhr, Helgoland, Hooge, Langeneß, Gröde
- Fährverbindung: nach Rømø (Dänemark) über den Lister Hafen
- Inselbus: schnelle Verbindung zur "Sylter Welle" (Schwimmbad)
- Nordic Walking Strecke: 220 km lang, anspruchsvoll
- Nahversorgung: Bäcker, Post, Bank, Apotheke, EDEKA in wenigen Minuten erreichbar
🧖♀️ Wellness & Erholung
A-ROSA Hotel (950 m entfernt):
- Tagesgäste willkommen im SPA-ROSA
- 3.500 m² Wellnessbereich
- Außenpool, Saunalandschaft mit Themensaunen
📍 Entfernungen
|
Ziel |
Entfernung |
|
Flughafen |
14 km |
|
Autobahn |
45 km |
|
Bahnhof |
15 km |
|
Ortszentrum |
1 km |
|
Einkaufsmöglichkeiten |
1 km |
|
Restaurant |
500 m |
|
Strand / Meer |
1 km |
|
Hafen |
2 km |
|
Golfplatz |
7 km |
(Alle Angaben ohne Gewähr)
Kontakt: Martina Wisotzki 0561-26955
(Bürozeiten Mo-Fr 10:00-18:00 Uhr)

